Riverhead House
Riverhead House
Elevation Studies
Concept Design
Sketch Arrangement
Riverhead House
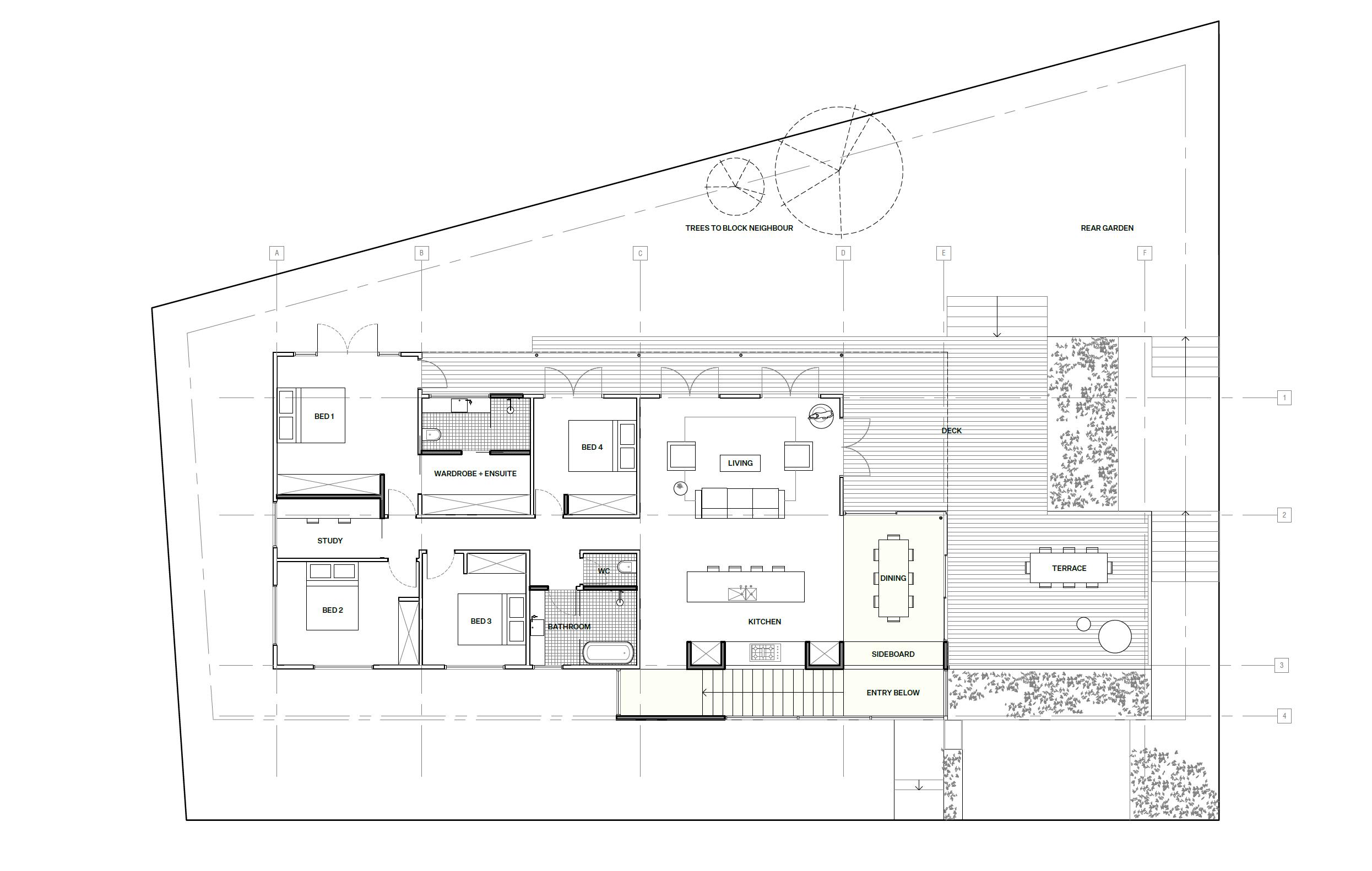
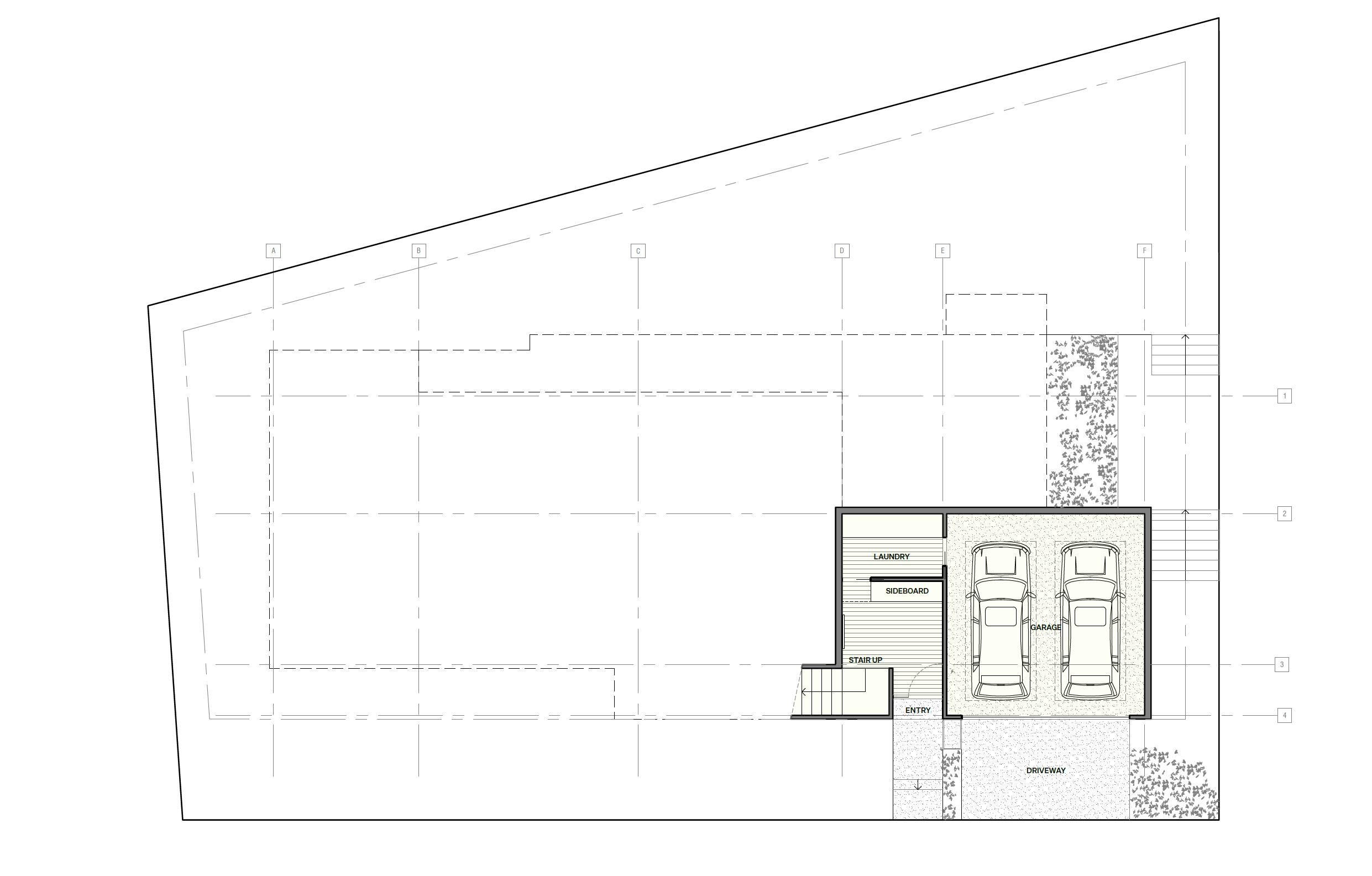
A house is relocated onto a restrictive site in Riverhead, with a thoughtful addition to tailor the house to it's new site.
Strata was engaged by the clients to manage the relocation of their old family home, and design the new addition and alterations.
The project is currently under construction, and is expected to complete mid-late 2024.
Strata was engaged by the clients to manage the relocation of their old family home, and design the new addition and alterations.
The project is currently under construction, and is expected to complete mid-late 2024.
- Category Residential, Alteration
- Location Auckland
- Years 2022 - 2022
-
Collaborators
Richards Consulting Engineers Structural EngineerRichards Consulting Engineers Civil EngineerJRC Ltd Contractor